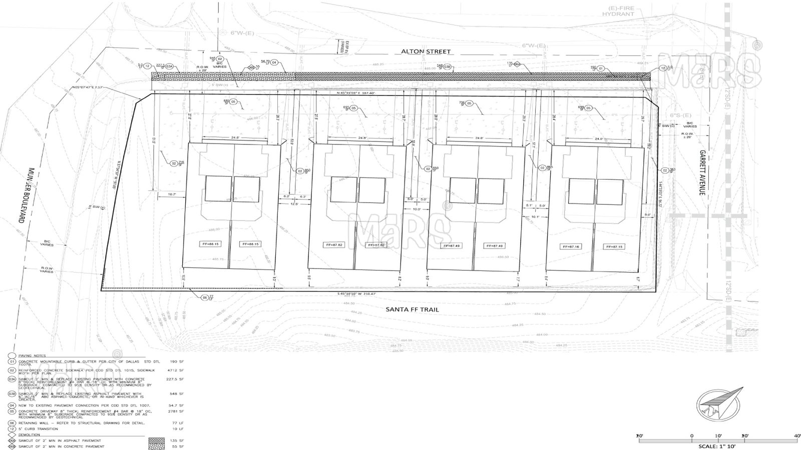
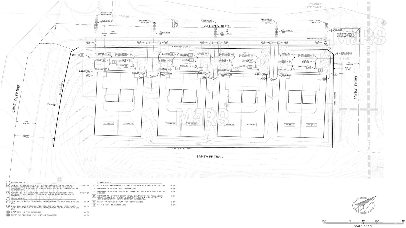
About the Project
MaRS Trans USA worked on the Munger Garden Project in Las Vegas, Nevada with a total area of 45,000 sq.m. The project required LOD 350 BIM modeling for design development and coordination. Our team used Revit and Navisworks to create detailed and accurate models.
The project was executed during 2019–21 and included architectural, structural, and MEP elements. The BIM model supported design validation, improved collaboration, and provided better insights for construction planning. It also ensured compliance with design requirements and standards.
Project Details
LOD: LOD 350
Year: 2019-21
Location: Las Vegas, Nevada
Software Used: Revit, Navisworks
What Did MaRS Do
We delivered a coordinated BIM model that improved project efficiency.
We created detailed models in Revit for architectural, structural, and MEP systems.
We used Navisworks to run clash detection and resolve design conflicts early.
We prepared accurate drawings and documents to support construction and project teams.
The Results
The project delivered a detailed BIM model that improved project delivery and collaboration.




